




- Atbilst EN12566-3 standartam
- Testētas sertificētā- notificētā laboratorijā
- Marķēta ar CE
Komplektācijā iekļauts :
Charles Austen 60W kompresors
Kompresora kaste
BioVRT-5N iekārta paredzēta 4-6 pastāvīgiem iedzīvotājiem. Svarīgi ievērot šo iedzīvotāju skaitu, lai iekārtas bioloģiskā vide netiktu pārslogota vai tieši pretēji, netiktu nepietiekoši apgādāta ar notekūdeņiem.
Mūsu bioloģiskās attīrīšanas iekārtām nav nepieciešams pievienot papildus baktērijas, jeb dūņas. Vide mūsu iekārtās izveidojas divu nedēļu laikā. Tādejādi neveidojas papildus izdevumi iekārtas barošanai.
Mūsu bioloģiskās attīrīšanas iekārtas izgatavotas atbilstoši EN12566-3 standartam. Iekārtas ir testētas sertificētā – notificētā laboratorijā, iekārtām veikts pilns stiprības un darbības tests atbilstoši EN12566-3.
Bioloģiskās attīrīšanas iekārtas ir labākais risinājums visiem, kas dzīvo blīvi apdzīvotos rajonos un pilsētas robežās, taču centrālā kanalizācija nav pieejama. Iekārtas attīra līdz pat 95% no notekūdeņiem, tādēļ attīrītais ūdens, kas tiek izvadīts nesmird un var tikt izmantots kā tehniskais ūdens. Šis noteikti ir kaimiņiem draudzīgs risinājums.
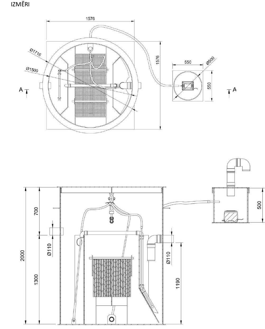
Ieplūde un izplūde ∅110mm*, tvertne ∅1500mm, augstums 2000mm.
Iekārtas ražīgums - 1,0 m3 dienā, iekārtas kopējais tilpums 2,1m3.
Augstums no ieplūdes teknes līdz iekārtas augšai - 70cm**
* iespējams pasūtīt iekārtu ar ∅160mm ieplūdi/izplūdi
** Pēc individuāla pasūtījuma attālumu var palielināt vai samazināt.
Jebkuru jautājumu gadījumā aicinām sazināties ar mums :
info@virte.lv vai 29620679